HOME
Studium
Über mich
Kontakt
HOME
Studium
Über mich
Kontakt
Jakob Hensel

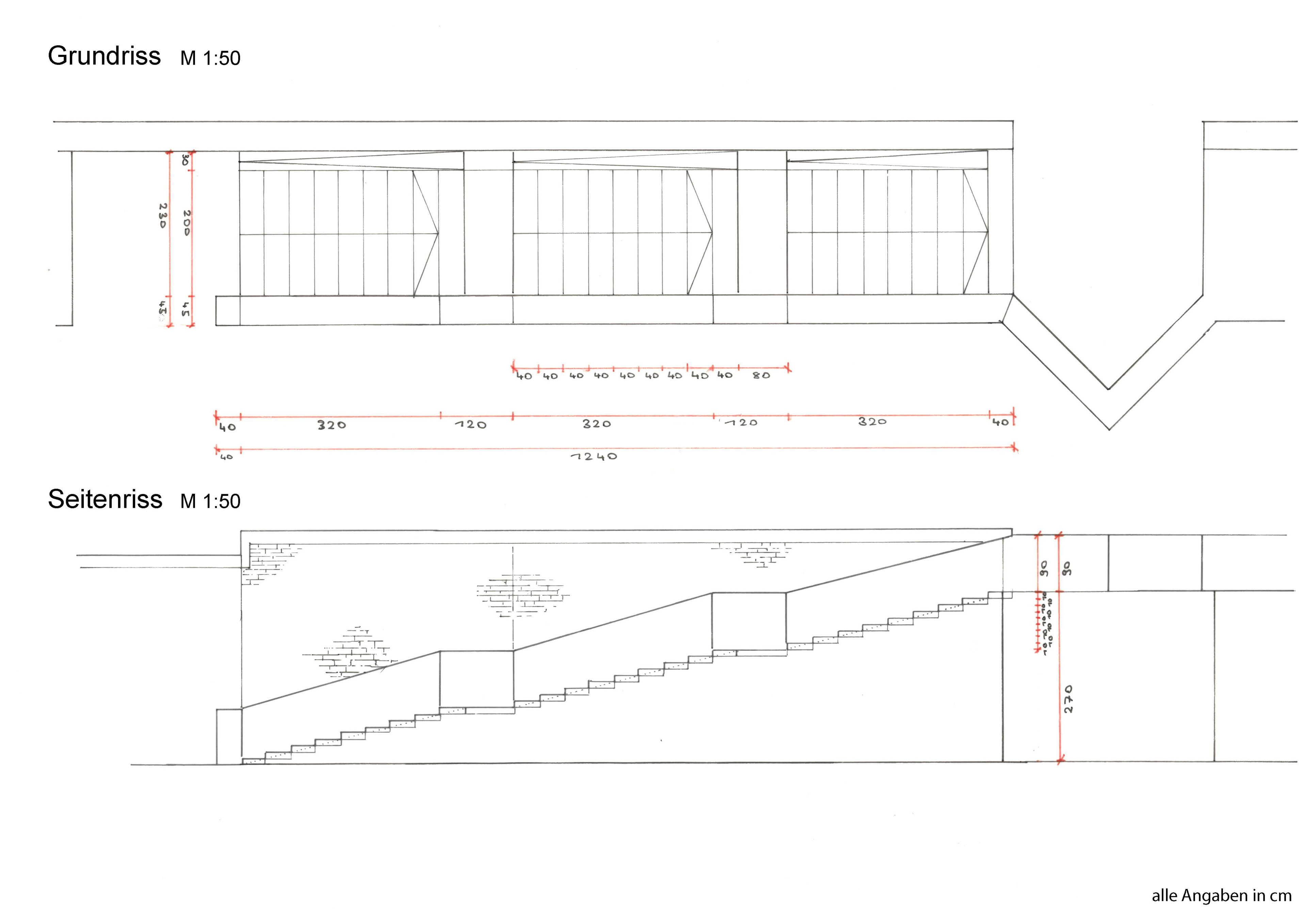
Semester 3 | Bauaufnahme einer Treppenkonstruktion

In dieser Übungsaufgabe für die Studienarbeit im Fach Baukonstruktion hatten wir vor Beginn des 3. Semesters die Möglichkeit, eine Freitreppe unserer Wahl baulich aufzunehmen und nach der Schrittmaßregel zu beurteilen.
vorheriges Projekt
nächstes Projekt

Weitere Projekte

Semester 1 | Planen & Entwerfen 1 - Entwurfsminiaturen
Semester 6 | 3D-Visualisierung
Semester 4 | Ausführungsplanung
Semester 6 | Aquarellzeichnen
Semester 1 | Darstellende Geometrie
Semester 6 | Stadtplanung 1 - Europark München
Semester 2 | Plandarstellung 2
Semester 7 | Bebauungsplan
Semester 1 | Plandarstellung 1
Semester 4 | Städtebau und Landschaftsarchitektur
↑Back to Top
Kontakt, Impressum und Datenschutz